Наша группа Вконтакте vk.com/4ertimcom
Подогреватель газа ПТПГ-30М
Домашняя страница автора:
https://vk.com/elpidiforov99
Описание:
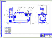
Общий вид подогревателя топливного пускового газа ПТПГ-30. Подогреватель топливного и пускового газа ПТПГ-30 предназначен для непрямого нагрева газа перед дросселированием на компрессорных станциях
Автор: ElpidiforovILYA
- Сборочные узлы
- Компас
- Войдите или зарегистрируйтесь, чтобы отправлять комментарии
Чертежи бесплатно