Наша группа Вконтакте vk.com/4ertimcom
ГОСТ 14624-84
E-mail автора:
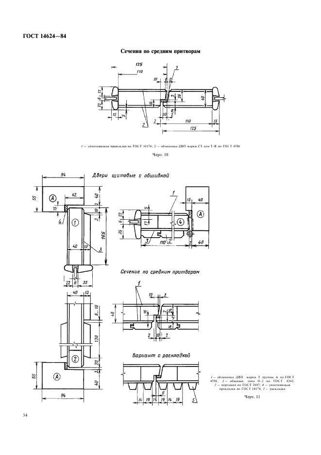
Двери деревянные для производственных зданий. Типы, конструкция и размеры
| Обозначение: | ГОСТ 14624-84 | ||
| Статус: | действующий | ||
| Название рус.: | Двери деревянные для производственных зданий. Типы, конструкция и размеры | ||
| Название англ.: | Wood doors for industrial buildings. Types, construction and dimensions | ||
| Дата актуализации текста: | 19.06.2012 | ||
| Дата актуализации описания: | 19.06.2012 | ||
| Дата введения в действие: | 01.07.1985 | ||
| Область и условия применения: | Настоящий стандарт распространяется на деревянные внутренние и наружные двери для производственных зданий промышленных и сельскохозяйственных предприятий. Стандарт не распространяется на двери специального исполнения (трудносгораемые, несгораемые, звукоизолирующие) |
||
| Взамен: | ГОСТ 14624-69 ГОСТ 17324-71 | ||












Автор:
Домашняя страница автора:
Чертежи бесплатно