Наша группа Вконтакте vk.com/4ertimcom
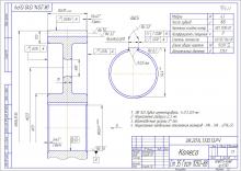
чертёж соосного редуктора !
Домашняя страница автора:
https://vk.com/shamil_363
Описание:
Вид:спереди, сверху , сбоку со спецификацией,рабочий чертёж тихоходного вала и допуски на посадку!
Автор: root
- Детали
- Компас 14
- Войдите или зарегистрируйтесь, чтобы отправлять комментарии
Чертежи бесплатно