Наша группа Вконтакте vk.com/4ertimcom
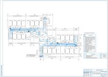
Электротехнический план 1-этажа общежития
Домашняя страница автора:
https://vk.com/xxxxx12xx
Описание:
Для специальности 08.02.09 Монтаж, наладка и эксплуатация электрооборудования промышленных и гражданских зданий
Автор: aleks-959595
- Здания и помещения
- Компас
- Войдите или зарегистрируйтесь, чтобы отправлять комментарии
Чертежи бесплатно
Комментарии
aleks-959595
ср, 05/22/2024 - 19:29
Электроснабжение
6_E_R_R_O_R_9
вс, 05/25/2025 - 17:12
(Тема не указана)