Наша группа Вконтакте vk.com/4ertimcom

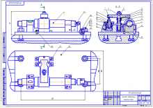
Приспособление для фрезерования шпоночного паза

проекты Скачать чертеж
Домашняя страница автора: 
vk.com/un1xcs
Описание: 

Приспособление для фрезерования шпоночного паза

Комментарии

а спецификация где?

если она есть

Вам отправили спецификацию?