Наша группа Вконтакте vk.com/4ertimcom

ГОСТ 6001-10000

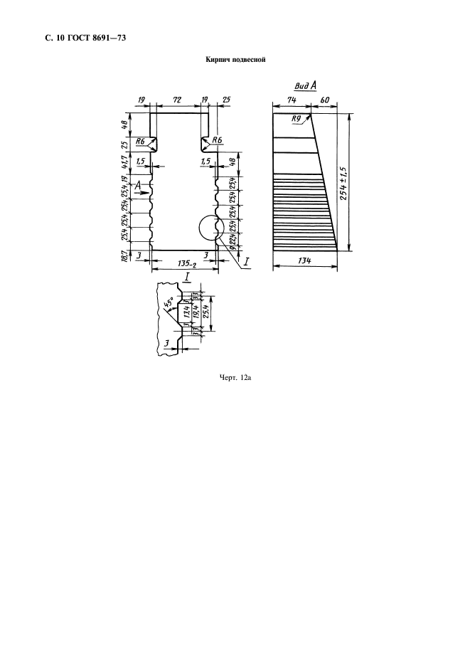
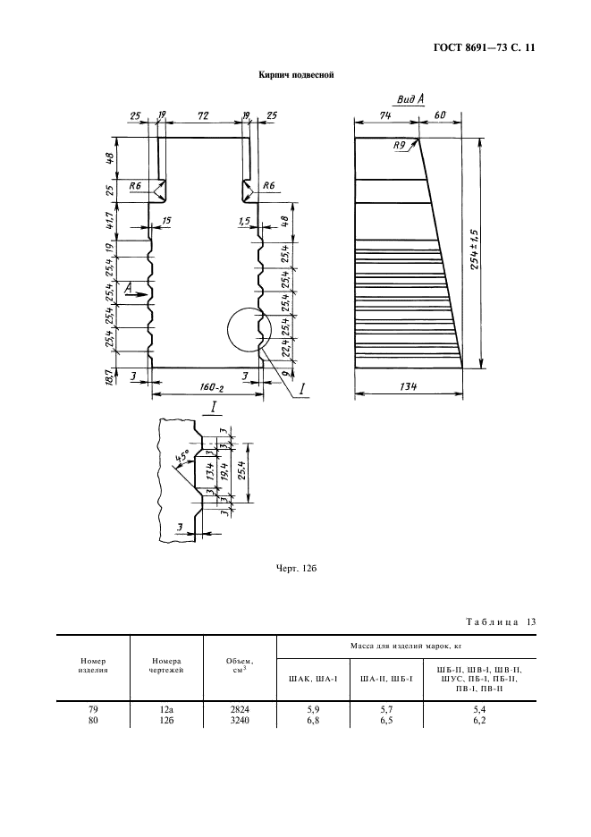
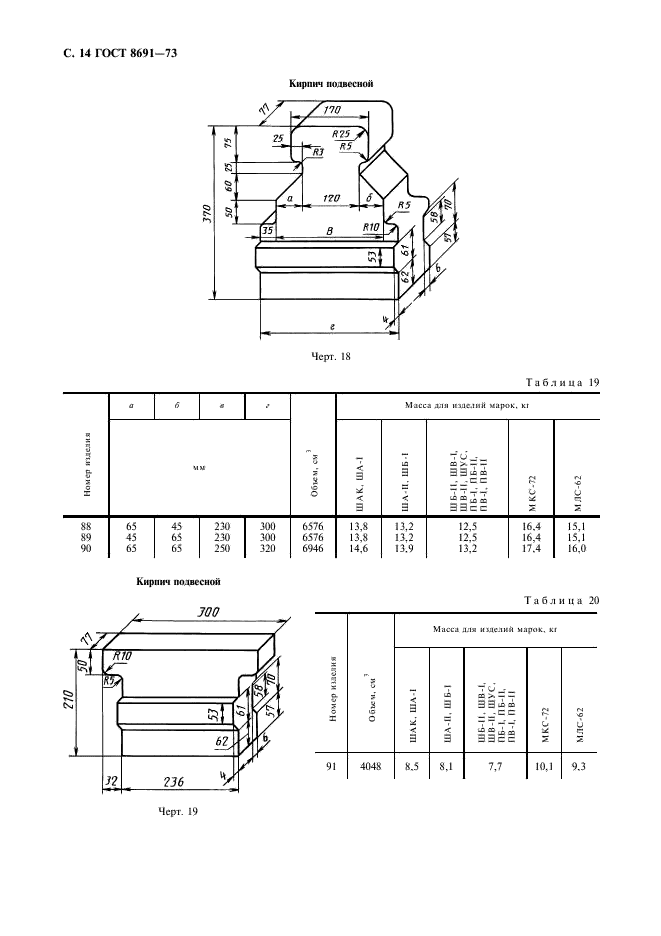
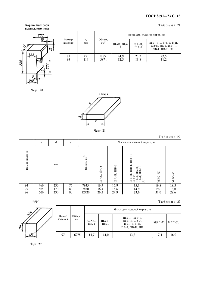
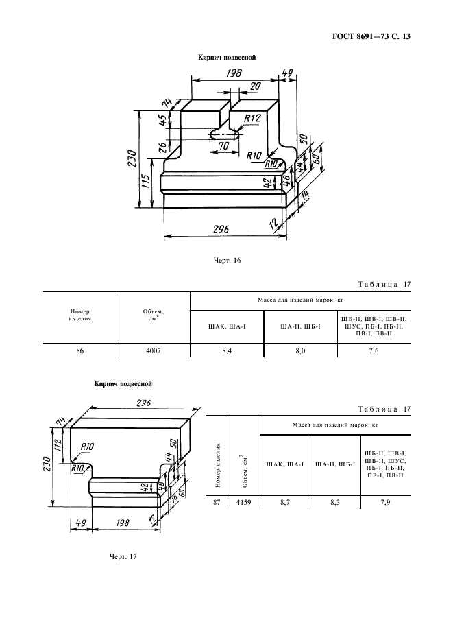
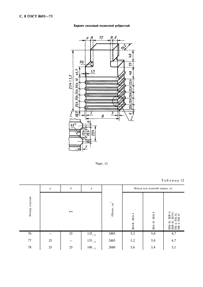
ГОСТ 8691-73

E-mail автора: 

Изделия огнеупорные общего назначения. Форма и размеры

Обозначение: ГОСТ 8691-73
Статус: действующий
Название рус.: Изделия огнеупорные общего назначения. Форма и размеры
Название англ.: General-purpose refractory articles. Form and dimensions
Дата актуализации текста: 19.06.2012
Дата актуализации описания: 19.06.2012
Дата введения в действие: 01.01.1975
Область и условия применения: Настоящий стандарт распространяется на огнеупорные изделия общего назначения, применяемые для кладки различных тепловых агрегатов
Взамен: ГОСТ 8691-58
Список изменений: №1 от 01.03.1977 (рег. 10.10.1977) «Срок действия продлен»
№2 от 01.01.1985 (рег. 06.08.1984) «Срок действия продлен»
№3 от 01.01.1990 (рег. 19.05.1989) «Поправка»
№4 от 01.01.1993 (рег. 15.04.1992) «Поправка»


ГОСТ 8691-73
ГОСТ 8691-73
ГОСТ 8691-73
ГОСТ 8691-73
ГОСТ 8691-73
ГОСТ 8691-73
ГОСТ 8691-73
ГОСТ 8691-73
ГОСТ 8691-73
ГОСТ 8691-73
ГОСТ 8691-73
ГОСТ 8691-73
ГОСТ 8691-73
ГОСТ 8691-73
ГОСТ 8691-73
ГОСТ 8691-73
ГОСТ 8691-73
ГОСТ 8691-73
ГОСТ 8691-73
ГОСТ 8691-73
Автор: 
Домашняя страница автора: 

ГОСТ Р ИСО 7206-4-2005

E-mail автора: 

Имплантаты для хирургии. Эндопротезы тазобедренного сустава частичные и тотальные. Часть 4. Определение прочности ножек бедренных компонентов

Обозначение: ГОСТ Р ИСО 7206-4-2005
Статус: действующий
Название рус.: Имплантаты для хирургии. Эндопротезы тазобедренного сустава частичные и тотальные. Часть 4. Определение прочности ножек бедренных компонентов
Название англ.: Implants for surgery. Partial and total hip joint prostheses. Part 4. Determination of endurance properties of stemmed femoral components
Дата актуализации текста: 19.06.2012
Дата актуализации описания: 19.06.2012
Дата введения в действие: 01.07.2006
Область и условия применения: Настоящий стандарт устанавливает методы испытаний ножек бедренных компонентов, входящих в состав тотального эндопротеза тазобедренного сустава, и ножек бедренных компонентов, используемых отдельно в частичных бедренных суставах, для определения их прочности в специальных лабораторных условиях. Стандарт также определяет условия испытаний и параметры, влияющие на компоненты, способы подготовки испытываемых образцов для испытаний.
Настоящий стандарт распространяется на эндопротезы, которые имеют плоскую симметричную поверхность или заранее сформированное смещение вперед, или двойное искривление ножки, а также на эндопротезы, предназначенные для контроля в ревизионной хирургии.
Настоящий стандарт не устанавливает методы оценки испытываемых образцов


ГОСТ Р ИСО 7206-4-2005
ГОСТ Р ИСО 7206-4-2005
ГОСТ Р ИСО 7206-4-2005
ГОСТ Р ИСО 7206-4-2005
ГОСТ Р ИСО 7206-4-2005
ГОСТ Р ИСО 7206-4-2005
ГОСТ Р ИСО 7206-4-2005
ГОСТ Р ИСО 7206-4-2005
ГОСТ Р ИСО 7206-4-2005
ГОСТ Р ИСО 7206-4-2005
ГОСТ Р ИСО 7206-4-2005
ГОСТ Р ИСО 7206-4-2005
ГОСТ Р ИСО 7206-4-2005
ГОСТ Р ИСО 7206-4-2005
ГОСТ Р ИСО 7206-4-2005
ГОСТ Р ИСО 7206-4-2005
Автор: 
Домашняя страница автора: 

ГОСТ 6611.3-2003

E-mail автора: 

Материалы текстильные. Нити. Методы определения числа кручений, укрутки и направления крутки

Обозначение: ГОСТ 6611.3-2003
Статус: действующий
Название рус.: Материалы текстильные. Нити. Методы определения числа кручений, укрутки и направления крутки
Название англ.: Textile materials. Threads. Methods for determination of twisting number, contraction and twist direction
Дата актуализации текста: 19.06.2012
Дата актуализации описания: 19.06.2012
Дата введения в действие: 01.12.2005
Область и условия применения: Настоящий стандарт распространяется на пряжу (одиночную и крученую) из натуральных, химических волокон и смешанную; нити (комплексные, крученые комплексные, крученые комбинированные) натуральные, химические и неоднородные однокруточные и многокруточные и устанавливает методы определения фактического числа кручений, укрутки, направления крутки нитей, числа элементарных нитей в комплексной нити и подсчет коэффициента крутки нитей.
Стандарт не распространяется на текстурированные, стеклянные, металлические нити и асбестовую пряжу
Взамен: ГОСТ 6611.3-73


ГОСТ 6611.3-2003
ГОСТ 6611.3-2003
ГОСТ 6611.3-2003
ГОСТ 6611.3-2003
ГОСТ 6611.3-2003
ГОСТ 6611.3-2003
ГОСТ 6611.3-2003
ГОСТ 6611.3-2003
ГОСТ 6611.3-2003
ГОСТ 6611.3-2003
ГОСТ 6611.3-2003
ГОСТ 6611.3-2003
ГОСТ 6611.3-2003
ГОСТ 6611.3-2003
ГОСТ 6611.3-2003
ГОСТ 6611.3-2003
ГОСТ 6611.3-2003
ГОСТ 6611.3-2003
Автор: 
Домашняя страница автора: 

ГОСТ Р ИСО 8573-2-2005

E-mail автора: 

Сжатый воздух. Часть 2. Методы контроля содержания масел в виде аэрозолей

Обозначение: ГОСТ Р ИСО 8573-2-2005
Статус: действующий
Название рус.: Сжатый воздух. Часть 2. Методы контроля содержания масел в виде аэрозолей
Название англ.: Compressed air. Part 2. Test methods for aerosol oil content
Дата актуализации текста: 19.06.2012
Дата актуализации описания: 19.06.2012
Дата введения в действие: 01.01.2006
Область и условия применения: Настоящий стандарт устанавливает методы отбора проб для количественной оценки содержания масел в аэрозольной и в жидкой формах (кроме их паров), которые присутствуют в воздухе, выходящем из компрессоров и других систем сжатого воздуха, и требования к оборудованию, применяемому для контроля содержания частиц масел в системах подачи сжатого воздуха.
Стандарт рассматривает системы сжатого воздуха с рабочим давлением до 30 бар и температурой воздуха ниже 100 град. С, кроме систем подачи сжатого воздуха, предназначенного для медицинских целей и непосредственно для дыхания


ГОСТ Р ИСО 8573-2-2005
ГОСТ Р ИСО 8573-2-2005
ГОСТ Р ИСО 8573-2-2005
ГОСТ Р ИСО 8573-2-2005
ГОСТ Р ИСО 8573-2-2005
ГОСТ Р ИСО 8573-2-2005
ГОСТ Р ИСО 8573-2-2005
ГОСТ Р ИСО 8573-2-2005
ГОСТ Р ИСО 8573-2-2005
ГОСТ Р ИСО 8573-2-2005
ГОСТ Р ИСО 8573-2-2005
ГОСТ Р ИСО 8573-2-2005
ГОСТ Р ИСО 8573-2-2005
ГОСТ Р ИСО 8573-2-2005
ГОСТ Р ИСО 8573-2-2005
ГОСТ Р ИСО 8573-2-2005
ГОСТ Р ИСО 8573-2-2005
ГОСТ Р ИСО 8573-2-2005
ГОСТ Р ИСО 8573-2-2005
ГОСТ Р ИСО 8573-2-2005
ГОСТ Р ИСО 8573-2-2005
ГОСТ Р ИСО 8573-2-2005
ГОСТ Р ИСО 8573-2-2005
ГОСТ Р ИСО 8573-2-2005
Автор: 
Домашняя страница автора: 

ГОСТ Р ИСО 7207-1-2005

E-mail автора: 

Имплантаты для хирургии. Бедренный и большеберцовый компоненты частичных и тотальных эндопротезов коленного сустава. Часть 1. Классификация, определения и обозначение размеров

Обозначение: ГОСТ Р ИСО 7207-1-2005
Статус: действующий
Название рус.: Имплантаты для хирургии. Бедренный и большеберцовый компоненты частичных и тотальных эндопротезов коленного сустава. Часть 1. Классификация, определения и обозначение размеров
Название англ.: Implants for surgery. Femoral and tibial components for partial and total knee joint prostheses. Part 1. Classification, definition and designation of dimensions
Дата актуализации текста: 19.06.2012
Дата актуализации описания: 19.06.2012
Дата введения в действие: 01.07.2006
Область и условия применения: Настоящий стандарт устанавливает классификацию, определения и обозначения размеров бедренного и большеберцового компонентов эндопротезов коленного сустава, в котором замещены одна или обе суставные поверхности, по крайней мере, одного отдела колена.
Настоящий стандарт не распространяется на компоненты надколенников и эндопротезов с промежуточным подвижным элементом


ГОСТ Р ИСО 7207-1-2005
ГОСТ Р ИСО 7207-1-2005
ГОСТ Р ИСО 7207-1-2005
ГОСТ Р ИСО 7207-1-2005
ГОСТ Р ИСО 7207-1-2005
ГОСТ Р ИСО 7207-1-2005
ГОСТ Р ИСО 7207-1-2005
ГОСТ Р ИСО 7207-1-2005
ГОСТ Р ИСО 7207-1-2005
ГОСТ Р ИСО 7207-1-2005
ГОСТ Р ИСО 7207-1-2005
Автор: 
Домашняя страница автора: 

ГОСТ 8227-56

E-mail автора: 

Хлеб и хлебобулочные изделия. Укладывание, хранение и транспортирование

Обозначение: ГОСТ 8227-56
Статус: действующий
Название рус.: Хлеб и хлебобулочные изделия. Укладывание, хранение и транспортирование
Название англ.: Bread and bakery products. Stowage, storage and transportation
Дата актуализации текста: 19.06.2012
Дата актуализации описания: 19.06.2012
Дата введения в действие: 01.03.1957
Область и условия применения: Хлеб и хлебобулочные изделия должны храниться в специально отведенных для этого помещениях, которые должны быть:
а) чистыми, сухими, побеленными или окрашенными светлыми красками, или облицованными керамической плиткой;
б) хорошо вентилируемыми;
в) не зараженными вредителями хлебных запасов;
г) без плесени на стенах и потолках;
д) изолированными от источников сильного нагрева или охлаждения и обеспеченными возможностью поддержания равномерной температуры не ниже +6 град. С;
е) хорошо освещенными
Взамен: ОСТ ВКС 5541
Список изменений: №1 от 01.07.1985 (рег. 13.12.1984) «Срок действия продлен»
№2 от 01.12.1988 (рег. 10.06.1988) «Срок действия продлен»


ГОСТ 8227-56
ГОСТ 8227-56
ГОСТ 8227-56
ГОСТ 8227-56
ГОСТ 8227-56
ГОСТ 8227-56
Автор: 
Домашняя страница автора: 

ГОСТ Р ИСО 7168-2-2005

E-mail автора: 

Качество воздуха. Представление данных. Часть 2. Сокращенный формат представления данных

Обозначение: ГОСТ Р ИСО 7168-2-2005
Статус: действующий
Название рус.: Качество воздуха. Представление данных. Часть 2. Сокращенный формат представления данных
Название англ.: Air quality. Exchange of data. Part 2. Condensed data format
Дата актуализации текста: 19.06.2012
Дата актуализации описания: 19.06.2012
Дата введения в действие: 01.07.2006
Область и условия применения: Настоящий стандарт устанавливает сокращенный формат представления данных по качеству воздуха. Сокращенный формат представления данных позволяет уменьшить размер файла и предназначен для обмена файлами между системами автоматической обработки данных. Файл с данными, представленными в сокращенном формате, содержит минимальную информацию, необходимую для обработки данных


ГОСТ Р ИСО 7168-2-2005
ГОСТ Р ИСО 7168-2-2005
ГОСТ Р ИСО 7168-2-2005
ГОСТ Р ИСО 7168-2-2005
ГОСТ Р ИСО 7168-2-2005
ГОСТ Р ИСО 7168-2-2005
ГОСТ Р ИСО 7168-2-2005
ГОСТ Р ИСО 7168-2-2005
ГОСТ Р ИСО 7168-2-2005
ГОСТ Р ИСО 7168-2-2005
ГОСТ Р ИСО 7168-2-2005
ГОСТ Р ИСО 7168-2-2005
ГОСТ Р ИСО 7168-2-2005
ГОСТ Р ИСО 7168-2-2005
ГОСТ Р ИСО 7168-2-2005
ГОСТ Р ИСО 7168-2-2005
ГОСТ Р ИСО 7168-2-2005
ГОСТ Р ИСО 7168-2-2005
ГОСТ Р ИСО 7168-2-2005
ГОСТ Р ИСО 7168-2-2005
ГОСТ Р ИСО 7168-2-2005
ГОСТ Р ИСО 7168-2-2005
ГОСТ Р ИСО 7168-2-2005
ГОСТ Р ИСО 7168-2-2005
Автор: 
Домашняя страница автора: 

ГОСТ 9656-75

E-mail автора: 

Реактивы. Кислота борная. Технические условия

Обозначение: ГОСТ 9656-75
Статус: действующий
Название рус.: Реактивы. Кислота борная. Технические условия
Название англ.: Reagents. Boric acid. Specifications
Дата актуализации текста: 19.06.2012
Дата актуализации описания: 19.06.2012
Дата введения в действие: 01.01.1977
Область и условия применения: Настоящий стандарт распространяется на борную кислоту - негорючее вещество, растворимое в воде, представляющее собой бесцветные, блестящие, чешуйчатые кристаллы или кристаллический порошок белого цвета
Взамен: ГОСТ 9656-61
Список изменений: №1 от 01.12.1981 (рег. 28.07.1981) «Срок действия продлен»
№2 от 01.01.1987 (рег. 22.07.1986) «Срок действия продлен»
№3 от 01.07.1989 (рег. 20.12.1988) «Срок действия продлен»


ГОСТ 9656-75
ГОСТ 9656-75
ГОСТ 9656-75
ГОСТ 9656-75
ГОСТ 9656-75
ГОСТ 9656-75
ГОСТ 9656-75
ГОСТ 9656-75
ГОСТ 9656-75
ГОСТ 9656-75
Автор: 
Домашняя страница автора: 

ГОСТ 9789-75

E-mail автора: 

Клапаны предохранительные пружинные полноподъемные фланцевые стальные на Ру около 1,6 и 4,0 МПа (16 и 40 кгс/см кв.). Технические условия

Обозначение: ГОСТ 9789-75
Статус: заменён
Название рус.: Клапаны предохранительные пружинные полноподъемные фланцевые стальные на Ру около 1,6 и 4,0 МПа (16 и 40 кгс/см кв.). Технические условия
Название англ.: Safety full-lifted flanged steel valve for Pnom 1,6 and 4,0 MPa (16 and 40 kgf/sq sm). Specifications
Дата актуализации текста: 19.06.2012
Дата актуализации описания: 19.06.2012
Дата введения в действие: 01.01.1977
Область и условия применения: Настоящий стандарт распространяется на предохранительные пружинные полноподъемные фланцевые стальные клапаны общепромышленного назначения на Py около 1,6 и 4,0 МПа (16 и 40 кгс/см кв.) и Dy 25, 40, 50, 80, 100, 150, 200 мм, предназначенные для установки на резервуарах, аппаратах или трубопроводах для автоматического выпуска среды при повышении давления относительно установленного
Взамен: ГОСТ 9789-61
Заменяющий: ГОСТ 31294-2005
Список изменений: №1 от 01.02.1977 (рег. 25.11.1977) «Срок действия продлен»
№2 от 01.01.1980 (рег. 27.06.1980) «Срок действия продлен»
№3 от 01.01.1982 (рег. 10.11.1981) «Срок действия продлен»
№4 от 01.02.1987 (рег. 24.09.1986) «Срок действия продлен»


ГОСТ 9789-75
ГОСТ 9789-75
ГОСТ 9789-75
ГОСТ 9789-75
ГОСТ 9789-75
ГОСТ 9789-75
ГОСТ 9789-75
ГОСТ 9789-75
Автор: 
Домашняя страница автора: 

ГОСТ 8608-96

E-mail автора: 

Изоляторы опорные штыревые фарфоровые на напряжение свыше 1000 В. Общие технические условия

Обозначение: ГОСТ 8608-96
Статус: действующий
Название рус.: Изоляторы опорные штыревые фарфоровые на напряжение свыше 1000 В. Общие технические условия
Название англ.: Porcelain pin support insulators for voltage above 1000 V. General specifications
Дата актуализации текста: 19.06.2012
Дата актуализации описания: 19.06.2012
Дата введения в действие: 01.01.2002
Область и условия применения: Настоящий стандарт распространяется на опорные штыревые фарфоровые изоляторы, предназначенные для изоляции и крепления токоведущих частей в электрических аппаратах и распределительных устройствах переменного тока напряжением свыше 1000 В частотой до 100 Гц для внутренней и наружной установки, применяемые в районах с нормальной и загрязненной атмосферой
Взамен: ГОСТ 8608-79


ГОСТ 8608-96
ГОСТ 8608-96
ГОСТ 8608-96
ГОСТ 8608-96
ГОСТ 8608-96
ГОСТ 8608-96
ГОСТ 8608-96
ГОСТ 8608-96
ГОСТ 8608-96
ГОСТ 8608-96
ГОСТ 8608-96
ГОСТ 8608-96
ГОСТ 8608-96
ГОСТ 8608-96
ГОСТ 8608-96
ГОСТ 8608-96
Автор: 
Домашняя страница автора: 

Страницы