Наша группа Вконтакте vk.com/4ertimcom

ГОСТ 2001-3000

ГОСТ 2697-83

E-mail автора: 

Пергамин кровельный. Технические условия

Обозначение: ГОСТ 2697-83
Статус: действующий
Название рус.: Пергамин кровельный. Технические условия
Название англ.: Roofing asphalt felt. Specifications
Дата актуализации текста: 19.06.2012
Дата актуализации описания: 19.06.2012
Дата введения в действие: 01.01.1985
Область и условия применения: Настоящий стандарт распространяется на кровельный пергамин - беспокровный рулонный материал, получаемый пропиткой кровельного картона марки 350 нефтяными битумами
Взамен: ГОСТ 2697-75
Список изменений: №1 от 01.01.2001 (рег. 08.11.2000) «Срок действия продлен»
Приложение №1: Изменение №1 к ГОСТ 2697-83


ГОСТ 2697-83
ГОСТ 2697-83
ГОСТ 2697-83
ГОСТ 2697-83
ГОСТ 2697-83
ГОСТ 2697-83
ГОСТ 2697-83


Изменение №1 к ГОСТ 2697-83

Обозначение: Изменение №1 к ГОСТ 2697-83
Дата введения в действие: 01.01.2001
Дата актуализации: 15.01.2008


Изменение №1 к ГОСТ 2697-83
Изменение №1 к ГОСТ 2697-83
Изменение №1 к ГОСТ 2697-83
Изменение №1 к ГОСТ 2697-83
Автор: 
Домашняя страница автора: 

ГОСТ 2226-88

E-mail автора: 

Мешки бумажные. Технические условия

Обозначение: ГОСТ 2226-88
Статус: утратил силу в РФ
Название рус.: Мешки бумажные. Технические условия
Название англ.: Paper bags. Specifications
Дата актуализации текста: 19.06.2012
Дата актуализации описания: 19.06.2012
Дата введения в действие: 01.01.1990
Область и условия применения: Настоящий стандарт распространяется на бумажные мешки, предназначенные для сыпучей и штучной продукции
Взамен: ГОСТ 2226-75
Список изменений: №0 от 01.11.2008 (рег. 01.11.2008) «Дата введения перенесена»
№0 от 01.01.2010 (рег. 10.07.2009) «Поправка к изменению»
№1 от 01.05.1992 (рег. 18.11.1991) «Срок действия продлен»
№2 от 01.01.2001 (рег. 14.09.2000) «Срок действия продлен»
№3 от 01.07.2006 (рег. 03.11.2005) «Срок действия продлен»
Приложение №1: Изменение №3 к ГОСТ 2226-88


ГОСТ 2226-88
ГОСТ 2226-88
ГОСТ 2226-88
ГОСТ 2226-88
ГОСТ 2226-88
ГОСТ 2226-88
ГОСТ 2226-88
ГОСТ 2226-88
ГОСТ 2226-88
ГОСТ 2226-88
ГОСТ 2226-88
ГОСТ 2226-88
ГОСТ 2226-88
ГОСТ 2226-88
ГОСТ 2226-88


Изменение №3 к ГОСТ 2226-88

Обозначение: Изменение №3 к ГОСТ 2226-88
Дата введения в действие: 01.07.2006
Дата актуализации: 15.01.2008


Изменение №3 к ГОСТ 2226-88
Изменение №3 к ГОСТ 2226-88
Изменение №3 к ГОСТ 2226-88
Изменение №3 к ГОСТ 2226-88
Изменение №3 к ГОСТ 2226-88
Изменение №3 к ГОСТ 2226-88
Автор: 
Домашняя страница автора: 

ГОСТ 2208-91

E-mail автора: 

Ленты латунные общего назначения. Технические условия

Обозначение: ГОСТ 2208-91
Статус: заменён
Название рус.: Ленты латунные общего назначения. Технические условия
Название англ.: Brass strips for general use. Specifications
Дата актуализации текста: 19.06.2012
Дата актуализации описания: 19.06.2012
Дата введения в действие: 01.07.1992
Область и условия применения: Настоящий стандарт распространяется на латунные ленты, применяемые в различных отраслях промышленности.
Стандарт не распространяется на радиаторные ленты толщиной до 0,25 мм
Взамен: ГОСТ 2208-75
Заменяющий: ГОСТ 2208-2007
Список изменений: №0 от 01.12.2002 (рег. 01.12.2002) «Ограничение срока действия снято»
№0 от 15.09.1998 (рег. 15.09.1998) «Дата введения перенесена»
№1 от 01.01.2003 (рег. 21.05.2002) «Текстовое изменение; Изменены ссылочные НД»
Приложение №1: Изменение №1 к ГОСТ 2208-91
Приложение №2: Изменение к ГОСТ 2208-91. Поправка к изменению


ГОСТ 2208-91
ГОСТ 2208-91
ГОСТ 2208-91
ГОСТ 2208-91
ГОСТ 2208-91
ГОСТ 2208-91
ГОСТ 2208-91
ГОСТ 2208-91
ГОСТ 2208-91
ГОСТ 2208-91
ГОСТ 2208-91
ГОСТ 2208-91
ГОСТ 2208-91
ГОСТ 2208-91
ГОСТ 2208-91


Изменение №1 к ГОСТ 2208-91

Обозначение: Изменение №1 к ГОСТ 2208-91
Дата введения в действие: 01.01.2003
Дата актуализации: 15.01.2008


Изменение №1 к ГОСТ 2208-91
Изменение №1 к ГОСТ 2208-91


Изменение к ГОСТ 2208-91. Поправка к изменению

Обозначение: Изменение к ГОСТ 2208-91. Поправка к изменению
Дата введения в действие: 01.12.2002
Дата актуализации: 15.01.2008


Изменение к ГОСТ 2208-91. Поправка к изменению
Автор: 
Домашняя страница автора: 

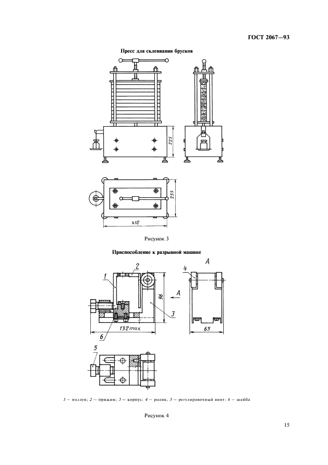
ГОСТ 2067-93

E-mail автора: 

Клей костный. Технические условия

Обозначение: ГОСТ 2067-93
Статус: действующий
Название рус.: Клей костный. Технические условия
Название англ.: Bone glue. Specifications
Дата актуализации текста: 19.06.2012
Дата актуализации описания: 19.06.2012
Дата введения в действие: 01.01.1995
Область и условия применения: Настоящий стандарт распространяется на костный клей, предназначенный для применения в народном хозяйстве
Взамен: ГОСТ 2067-80
Список изменений: №0 от 21.08.2003 (рег. 21.08.2003) «Дата введения перенесена»
Приложение №1: Поправка к ГОСТ 2067-93


ГОСТ 2067-93
ГОСТ 2067-93
ГОСТ 2067-93
ГОСТ 2067-93
ГОСТ 2067-93
ГОСТ 2067-93
ГОСТ 2067-93
ГОСТ 2067-93
ГОСТ 2067-93
ГОСТ 2067-93
ГОСТ 2067-93
ГОСТ 2067-93
ГОСТ 2067-93
ГОСТ 2067-93
ГОСТ 2067-93
ГОСТ 2067-93
ГОСТ 2067-93
ГОСТ 2067-93
ГОСТ 2067-93
ГОСТ 2067-93
ГОСТ 2067-93
ГОСТ 2067-93
ГОСТ 2067-93
ГОСТ 2067-93


Поправка к ГОСТ 2067-93

Обозначение: Поправка к ГОСТ 2067-93
Дата введения в действие: 21.08.2003
Дата актуализации: 15.01.2008


Поправка к ГОСТ 2067-93
Автор: 
Домашняя страница автора: 

ГОСТ 2678-94

E-mail автора: 

Материалы рулонные кровельные и гидроизоляционные. Методы испытаний

Обозначение: ГОСТ 2678-94
Статус: действующий
Название рус.: Материалы рулонные кровельные и гидроизоляционные. Методы испытаний
Название англ.: Rolled roofing and waterproof materials. Methods of testing
Дата актуализации текста: 19.06.2012
Дата актуализации описания: 19.06.2012
Дата введения в действие: 01.01.1996
Область и условия применения: Настоящий стандарт распространяется на рулонные кровельные и гидроизоляционные битумные, битумно-полимерные и полимерные материалы и устанавливает методы испытаний
Взамен: ГОСТ 2678-87
Список изменений: №0 от 01.12.1998 (рег. 01.12.1998) «Дата введения перенесена»
№0 от 01.04.1998 (рег. 01.04.1998) «Дата введения перенесена»
№1 от 01.01.2003 (рег. 02.09.2002) «Текстовое изменение; Изменены ссылочные НД»
Приложение №1: Изменение №1 к ГОСТ 2678-94


ГОСТ 2678-94
ГОСТ 2678-94
ГОСТ 2678-94
ГОСТ 2678-94
ГОСТ 2678-94
ГОСТ 2678-94
ГОСТ 2678-94
ГОСТ 2678-94
ГОСТ 2678-94
ГОСТ 2678-94
ГОСТ 2678-94
ГОСТ 2678-94
ГОСТ 2678-94
ГОСТ 2678-94
ГОСТ 2678-94
ГОСТ 2678-94
ГОСТ 2678-94
ГОСТ 2678-94
ГОСТ 2678-94
ГОСТ 2678-94
ГОСТ 2678-94
ГОСТ 2678-94
ГОСТ 2678-94
ГОСТ 2678-94
ГОСТ 2678-94
ГОСТ 2678-94
ГОСТ 2678-94
ГОСТ 2678-94
ГОСТ 2678-94
ГОСТ 2678-94
ГОСТ 2678-94


Изменение №1 к ГОСТ 2678-94

Обозначение: Изменение №1 к ГОСТ 2678-94
Дата введения в действие: 01.01.2003
Дата актуализации: 15.01.2008


Изменение №1 к ГОСТ 2678-94
Изменение №1 к ГОСТ 2678-94
Изменение №1 к ГОСТ 2678-94
Изменение №1 к ГОСТ 2678-94
Изменение №1 к ГОСТ 2678-94
Изменение №1 к ГОСТ 2678-94
Изменение №1 к ГОСТ 2678-94
Изменение №1 к ГОСТ 2678-94
Изменение №1 к ГОСТ 2678-94
Изменение №1 к ГОСТ 2678-94
Изменение №1 к ГОСТ 2678-94
Изменение №1 к ГОСТ 2678-94
Изменение №1 к ГОСТ 2678-94
Автор: 
Домашняя страница автора: 

ГОСТ 2408.1-95

E-mail автора: 

Топливо твердое. Методы определения углерода и водорода

Обозначение: ГОСТ 2408.1-95
Статус: действующий
Название рус.: Топливо твердое. Методы определения углерода и водорода
Название англ.: Solid fuel. Methods for determination of carbon and hydrogen
Дата актуализации текста: 19.06.2012
Дата актуализации описания: 19.06.2012
Дата введения в действие: 01.01.1997
Область и условия применения: Настоящий стандарт распространяется на бурые и каменные угли, лигниты, антрациты, горючие сланцы, кокс и торф и устанавливает два метода определения углерода и водорода: метод Либиха и ускоренный метод
Взамен: ГОСТ 2408.1-88 ГОСТ 27044-86
Список изменений: №1 от 01.01.2001 (рег. 23.02.2000) «Срок действия продлен»


ГОСТ 2408.1-95
ГОСТ 2408.1-95
ГОСТ 2408.1-95
ГОСТ 2408.1-95
ГОСТ 2408.1-95
ГОСТ 2408.1-95
ГОСТ 2408.1-95
ГОСТ 2408.1-95
ГОСТ 2408.1-95
ГОСТ 2408.1-95
ГОСТ 2408.1-95
ГОСТ 2408.1-95
ГОСТ 2408.1-95
ГОСТ 2408.1-95
ГОСТ 2408.1-95
ГОСТ 2408.1-95
ГОСТ 2408.1-95
ГОСТ 2408.1-95
ГОСТ 2408.1-95
ГОСТ 2408.1-95
ГОСТ 2408.1-95
ГОСТ 2408.1-95
ГОСТ 2408.1-95
Автор: 
Домашняя страница автора: 

ГОСТ 2059-95

E-mail автора: 

Топливо твердое минеральное. Метод определения общей серы сжиганием при высокой температуре

Обозначение: ГОСТ 2059-95
Статус: действующий
Название рус.: Топливо твердое минеральное. Метод определения общей серы сжиганием при высокой температуре
Название англ.: Solid mineral fuel. Determination of total sulfur. High temperature combustion method
Дата актуализации текста: 19.06.2012
Дата актуализации описания: 19.06.2012
Дата введения в действие: 01.01.1997
Область и условия применения: Настоящий стандарт распространяется на бурые и каменные угли, антрацит, лигниты, кокс, твердые продукты обогащения и переработки, и устанавливает ускоренный метод определения общей серы высокотемпературным сжиганием.
При возникновении разногласий общую серу определяют альтернативным гравиметрическим методом по ГОСТ 8606
Взамен: ГОСТ 2059-75 ГОСТ 4339-74
Список изменений: №0 от 15.12.2001 (рег. 15.12.2001) «Ограничение срока действия снято»
№1 от 01.01.2002 (рег. 30.07.2001) «Текстовое изменение; Изменены ссылочные НД»
Приложение №1: Изменение №1 к ГОСТ 2059-95
Приложение №2: Изменение к ГОСТ 2059-95. Поправка к изменению


ГОСТ 2059-95
ГОСТ 2059-95
ГОСТ 2059-95
ГОСТ 2059-95
ГОСТ 2059-95
ГОСТ 2059-95
ГОСТ 2059-95
ГОСТ 2059-95
ГОСТ 2059-95
ГОСТ 2059-95
ГОСТ 2059-95
ГОСТ 2059-95
ГОСТ 2059-95
ГОСТ 2059-95


Изменение №1 к ГОСТ 2059-95

Обозначение: Изменение №1 к ГОСТ 2059-95
Дата введения в действие: 01.01.2002
Дата актуализации: 15.01.2008


Изменение №1 к ГОСТ 2059-95
Изменение №1 к ГОСТ 2059-95
Изменение №1 к ГОСТ 2059-95


Изменение к ГОСТ 2059-95. Поправка к изменению

Обозначение: Изменение к ГОСТ 2059-95. Поправка к изменению
Дата введения в действие: 15.12.2001
Дата актуализации: 15.01.2008


Изменение к ГОСТ 2059-95. Поправка к изменению
Автор: 
Домашняя страница автора: 

ГОСТ 2162-97

E-mail автора: 

Лента изоляционная прорезиненная. Технические условия

Обозначение: ГОСТ 2162-97
Статус: действующий
Название рус.: Лента изоляционная прорезиненная. Технические условия
Название англ.: Adhesive rubberized tape. Specifications
Дата актуализации текста: 19.06.2012
Дата актуализации описания: 19.06.2012
Дата введения в действие: 01.01.2003
Область и условия применения: Настоящий стандарт распространяется на изоляционную прорезиненную ленту, предназначенную для электроизоляции и применяемую в неагрессивных средах при температуре от минус 30 до плюс 30 град. С
Взамен: ГОСТ 2162-78


ГОСТ 2162-97
ГОСТ 2162-97
ГОСТ 2162-97
ГОСТ 2162-97
ГОСТ 2162-97
ГОСТ 2162-97
ГОСТ 2162-97
ГОСТ 2162-97
ГОСТ 2162-97
ГОСТ 2162-97
ГОСТ 2162-97
ГОСТ 2162-97
Автор: 
Домашняя страница автора: 

ГОСТ 2208-2007

E-mail автора: 

Фольга, ленты, листы и плиты латунные. Технические условия

Обозначение: ГОСТ 2208-2007
Статус: действующий
Название рус.: Фольга, ленты, листы и плиты латунные. Технические условия
Название англ.: Brass foil, ribbons, sheets and plates. Specifications
Дата актуализации текста: 19.06.2012
Дата актуализации описания: 19.06.2012
Дата введения в действие: 01.07.2008
Область и условия применения: Настоящий стандарт распространяется на латунные холоднокатаные фольгу, ленты, холоднокатаные и горячекатаные листы и горячекатаные плиты общего назначения.
Стандарт не распространяется на латунные ленты, предназначенные для радиаторов
Взамен: ГОСТ 2208-91 ГОСТ 931-90
Список изменений: №1 от 01.02.2012 (рег. 15.11.2011) «Поправка»


ГОСТ 2208-2007
ГОСТ 2208-2007
ГОСТ 2208-2007
ГОСТ 2208-2007
ГОСТ 2208-2007
ГОСТ 2208-2007
ГОСТ 2208-2007
ГОСТ 2208-2007
ГОСТ 2208-2007
ГОСТ 2208-2007
ГОСТ 2208-2007
ГОСТ 2208-2007
ГОСТ 2208-2007
ГОСТ 2208-2007
ГОСТ 2208-2007
ГОСТ 2208-2007
ГОСТ 2208-2007
ГОСТ 2208-2007
ГОСТ 2208-2007
ГОСТ 2208-2007
ГОСТ 2208-2007
ГОСТ 2208-2007
ГОСТ 2208-2007
ГОСТ 2208-2007
ГОСТ 2208-2007
ГОСТ 2208-2007
ГОСТ 2208-2007
Автор: 
Домашняя страница автора: 

ГОСТ 2310-77

E-mail автора: 

Молотки слесарные стальные. Технические условия

Обозначение: ГОСТ 2310-77
Статус: действующий
Название рус.: Молотки слесарные стальные. Технические условия
Название англ.: Steel bench hammers. Specifications
Дата актуализации текста: 19.06.2012
Дата актуализации описания: 19.06.2012
Дата введения в действие: 01.01.1980
Область и условия применения: Настоящий стандарт распространяется на слесарные стальные молотки массой от 0,05 до 1,00 кг, изготовляемые для нужд народного хозяйства и экспорта.
Настоящий стандарт не распространяется на молотки стальные строительные
Взамен: ГОСТ 2310-70
Список изменений: №0 от 01.12.2005 (рег. 01.12.2005) «Дата введения перенесена»
№1 от 01.01.1987 (рег. 26.06.1986) «Срок действия продлен»
№2 от 01.01.1988 (рег. 23.09.1987) «Срок действия продлен»
№3 от 01.11.1988 (рег. 30.05.1988) «Срок действия продлен»
№4 от 01.08.1990 (рег. 09.02.1990) «Срок действия продлен»
Приложение №1: Поправка к ГОСТ 2310-77


ГОСТ 2310-77
ГОСТ 2310-77
ГОСТ 2310-77
ГОСТ 2310-77
ГОСТ 2310-77
ГОСТ 2310-77
ГОСТ 2310-77
ГОСТ 2310-77
ГОСТ 2310-77
ГОСТ 2310-77
ГОСТ 2310-77
ГОСТ 2310-77
ГОСТ 2310-77
ГОСТ 2310-77
ГОСТ 2310-77
ГОСТ 2310-77
ГОСТ 2310-77
ГОСТ 2310-77
ГОСТ 2310-77
ГОСТ 2310-77


Поправка к ГОСТ 2310-77

Обозначение: Поправка к ГОСТ 2310-77
Дата введения в действие: 01.12.2005
Дата актуализации: 15.01.2008


Поправка к ГОСТ 2310-77
Автор: 
Домашняя страница автора: 

Страницы